Αρχική
Ακίνητα
Πωλήσεις
Houses
Luxury Villas
Apartments
Land
Traditional Stone Houses
Hotels
Complex Apartments
Commercial
Business
Ενοικιάσεις
Houses
Luxury Villas
Apartments
Land
Traditional Stone Houses
Hotels
Complex Apartments
Commercial
Business
Search by Region
Agios Nikolaos
Elounda
Ierapetra
Sitia
Heraklio
Rethymno
Chania
Neapoli
Milatos
Sisi
Services
Property Evaluation
Property Management
Financing
Building Regulations
Sales
Rentals
About Crete
About US
Επικοινωνία
GR
Οικόπεδο 564.95 τ.μ με άδεια δόμησης προς πώληση στον Κρούστα
Χαρακτηριστικά
WC:
Έτος Κατασκευής:
Parkings
:
Web Reference:
1867285
Κωδικός:
7224 pa
Περιοχή:
Άγιος Νικόλαος (Δ. Μιραμπέλου)
Υποπεριοχή:
Κρούστας
Τιμή:
140.000€
Εμβαδόν
m2
:
564,95
Κατηγορία:
Αξιοποιήσημη Γη
Τύπος:
Οικόπεδο
Κατάσταση:
Τιμή/τ.μ.:
248€
Τ.μ. Οικοπέδου:
Επίπεδα:
ΠΕΑ:
Σ.Δ.:
Σ.Κ.:
Χρήση Γης:
Σχέδιο Πόλεως:
Εντός οικισμού
Αντικειμενική αξία:
0,00
Επιπλέον Χαρακτηριστικά
Οικοδομήσιμο
Με άδεια οικοδομής
Περιγραφή
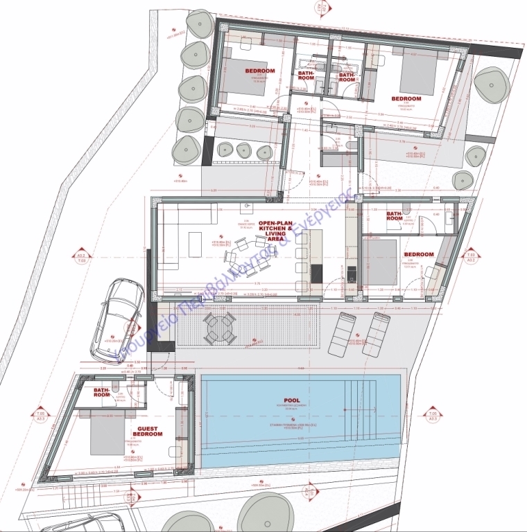
Οικόπεδο 564.95 τ.μ. με άδεια δόμησης είναι διαθέσιμο προς πώληση στον Κρούστα .Απέχει 14 χλμ από την θάλασσα και τον Άγιο Νικόλαο καθώς επίσης και 73 χλμ από τον διεθνή αερολιμένα Ηρακλείου .Είναι επίπεδο με ελαφριές κλίσεις και διαθέτει παροχές νερού και ηλεκτρικού σε κοντινή απόσταση.Η άδεια δόμησης επιτρέπει την κατασκευή κατοικίας 200 τ.μ. με ιδιωτική πισίνα 27 τ.μ.Η κατοικία θα περιλαμβάνει ενιαίο χώρο καθιστικού -τραπεζαρίας , τέσσερα υπνοδωμάτια με ιδιωτικά λουτρά και ένα WC .Λόγω της εξαιρετικής του θέσης προσφέρει καταπληκτική θέα σε θάλασσα και βουνά και αποτελεί μια ιδανική ευκαιρία επένδυσης για την ανέγερση μιας κατοικίας καθώς και την δυνατότητα εκμετάλλευσης αυτής σε μια όμορφη και ήσυχη περιοχή
Απόσταση από
Χωριό (χλμ):
Πόλη (χλμ):
14
Θάλασσα (χλμ):
14
Αεροδρόμιο (χλμ):
73
Χάρτης
Εμφάνιση Χάρτη
Στατιστικά Ακινήτου
Δημοσίευση Ακινήτου:
20 Δεκ, 2025
Τελευταία ενημέρωση:
22 Δεκ, 2025
facebook
twitter
pinterest
Με Ενδιαφέρει
*
Υποχρεωτικό πεδίο
Υποχρεωτικό πεδίο
*
Υποχρεωτικό πεδίο
Ενδιαφέρομαι για το ακόλουθο ακίνητο: Οικόπεδο 564.95 τ.μ με άδεια δόμησης προς πώληση στον Κρούστα, Κωδ.16358, e-agentsID: 1867285. Παρακαλώ, επικοινωνήστε μαζί μου για να μου παράσχετε περισσότερες πληροφορίες.
Υποχρεωτικό πεδίο
Τα πεδία με
*
είναι υποχρεωτικά
Αποδέχομαι τους
Όρους χρήσης και απορρήτου
και συγκατατίθεμαι στην CRETA INVEST να αποθηκεύσει τα στοιχεία μου για επικοινωνία και μελλοντική ενημέρωση μου.
Αποστολή και στο e-mail μου
Εισάγετε τον κωδικό
Αποστολή
Εργαλεία
Αποστολή σε Φίλο
*
Υποχρεωτικό πεδίο
*
Υποχρεωτικό πεδίο
*
Υποχρεωτικό πεδίο
Υποχρεωτικό πεδίο
Δέχομαι η συγκεκριμένη εταιρεία να αποθηκεύσει τα στοιχεία μου για την επικοινωνία και την μελλοντική ενημέρωση μου
Αποστολή και στο e-mail μου
Εισάγετε τον κωδικό
Αποστολή
Συμπληρώστε την φόρμα και πατήστε αποστολή. Τα πεδία με
*
είναι υποχρεωτικά
Υπολογισμός Δανείου
Συμπληρώστε το Επιτόκιο (χωρίς το σύμβολο %} και τη Διάρκεια αποπληρωμής σε έτη. Αν επιθυμείτε μπορείτε να αλλάξετε και το ποσό
Ποσό
Διάρκεια (έτη)
Επιτόκιο
(%)
Μηνιαία Δόση
Συνολικό Ποσό
Συνολικός Τόκος
Νόμισμα
Socialize it
Τηλέφωνο:
+30 28410 82438
Email:
[email protected]
3 Michael Sfakianaki Str.
Notes
Οικόπεδο 564.95 τ.μ με άδεια δόμησης προς πώληση στον Κρούστα
Χαρακτηριστικά
Περιοχή:
Άγιος Νικόλαος (Δ. Μιραμπέλου)
Υποπεριοχή:
Κρούστας
Τιμή:
140.000€
Εμβαδόν
m2
:
564,95
Κατηγορία:
Αξιοποιήσημη Γη
Τύπος:
Οικόπεδο
Κατάσταση:
Τιμή/τ.μ.:
248€
Υ/Δ:
WC:
Μπάνια:
Όροφος:
Έτος Κατασκευής:
Τ.μ. Οικοπέδου:
Επίπεδα:
ΠΕΑ:
ID code:
1867285
Κωδικός:
7224 pa
Σ.Δ.:
Σ.Κ.:
Χρήση Γης:
Σχέδιο Πόλεως:
Εντός οικισμού
Περιγραφή
Οικόπεδο 564.95 τ.μ. με άδεια δόμησης είναι διαθέσιμο προς πώληση στον Κρούστα .Απέχει 14 χλμ από την θάλασσα και τον Άγιο Νικόλαο καθώς επίσης και 73 χλμ από τον διεθνή αερολιμένα Ηρακλείου .Είναι επίπεδο με ελαφριές κλίσεις και διαθέτει παροχές νερού και ηλεκτρικού σε κοντινή απόσταση.Η άδεια δόμησης επιτρέπει την κατασκευή κατοικίας 200 τ.μ. με ιδιωτική πισίνα 27 τ.μ.Η κατοικία θα περιλαμβάνει ενιαίο χώρο καθιστικού -τραπεζαρίας , τέσσερα υπνοδωμάτια με ιδιωτικά λουτρά και ένα WC .Λόγω της εξαιρετικής του θέσης προσφέρει καταπληκτική θέα σε θάλασσα και βουνά και αποτελεί μια ιδανική ευκαιρία επένδυσης για την ανέγερση μιας κατοικίας καθώς και την δυνατότητα εκμετάλλευσης αυτής σε μια όμορφη και ήσυχη περιοχή
For further information about this property, please contact us!
CRETA INVEST - Real Estate
| 
Phone:
+30 28410 82438
|
Email:
[email protected]